跳至内容

今天就开始设计,选购最优惠的新年商品

现代简约生活

概述:

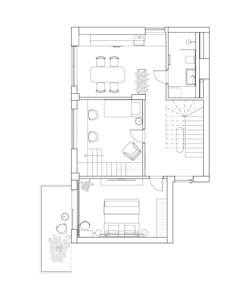
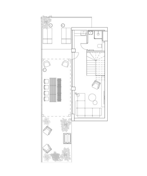
150 平方米的空间采用简约现代风格,线条简洁明快,开放式起居室增强了空间流动性。两层楼的布局最大限度地利用了垂直空间,营造出层次分明而又不显凌乱的居住体验。.

服务包括

Modern Minimalist Living home project (9)
Modern Minimalist Living home project (3)
Modern Minimalist Living home project (2)
Modern Minimalist Living home project (4)

平面图

Modern Minimalist Living home project (5)
Modern Minimalist Living home project (6)

您喜欢这种室内设计风格吗?

在这里,您可以探索产品、获得灵感并与设计师交流。请立即预约,在展厅享受一对一的 VIP 服务。.

探索更多项目